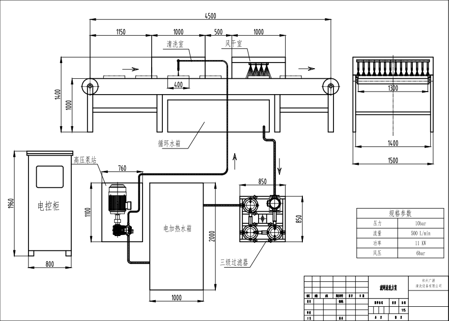
铝模板近几年的发展势头非常迅猛,特别是在高层建筑应用非常广泛,因为铝模施工较传统木板有着环保、、优良、的特点,铝模板较大程度的改善了传统建筑行业施工环境、提高工艺质量,由于材料的特殊性,他是具备重复利用条件,但模板内遗留下来的杂物影响进步施工的质量,且模板表面的吸附力好、延展性差,施工后粘附在上边的混凝土很难清洗,所以大多数施工单位采用自动高压水清洗线来代替传统方式,不但清洗速度快而且干净,纯物理高压水清洗,减少人工,同时还延长了铝模板的使用寿命。
近期我们根据客户要求及铝模板的构造、尺寸和清洗程度,联合技术部制作研究清洗方案,很后达成交易。其工作原理:由电机动力转动带动高压泵曲轴运动,曲轴带动连杆推动柱塞做往复式运动中,将液力端低压水转换成高压水,从高压泵出水口输出,经过高压胶管高压枪等传送,由高压喷嘴射出,由于喷射到物体表面的冲击力大于水泥/混凝土在铝模板表面的附着力,从而使水泥混凝土从铝模板表面剥离,达到清洗效果。设计制作清洗室,安装在输送线中间,将清洗喷嘴设置为数量的喷嘴清洗装置放置在清洗室内,四面全覆盖式清洗;工作过程:将需要清洗的铝模板放置在输送线一端,有由输送线滚轴带动输送 进入清洗室内进行完整清洗,然后从清洗室另一端输送出去,清洗完成。
郑州广源竭诚为您服务:
1.我们有的销售人员解答您的问题,关于技术参数、付款方式、物流配送等问题。
2.您可以联系我们,我们会立马给您回复的
3.机器做好后您可以来厂验货,或者我们会发机器图片以及试机视频给您。
4.我们会提供与机器有关的资料,包括装箱单、使用说明书、操作流程、机器图纸等。
5.发货之后我们会及时跟踪货物,以使您按时收到货物
6.机器除易损配件意外均有一年质保期,一年之内,机器出现问题,电话沟通解决不了,人员上门维修
7.成交以后,后续需要配件的话我们会给予八折优惠


首页
产品